--   |  设为首页

帮忙装修网

中山

[切换]

卧室改套间怎么设计,中山套间装修效果图大全

来自:中山帮忙装修网 日期:2021-05-25 11:42:34 157684 次 分享到:
导读:
不用再羡慕别墅的套间了,我们自己也可以拥有!设计其实不难,掌握这几点就可以实现“套间自由”了!下面来看看中山帮忙装修网公司的分享。

住久了功能单一的卧室,我们总是向往拥有一个套间,不仅仅是因为它功能齐全,包含了卫生间和衣帽间、甚至休闲区和书房,更重要的是套间所带来的仪式感是不一样的。

不用再羡慕别墅的套间了,我们自己也可以拥有!设计其实不难,掌握这几点就可以实现“套间自由”了!

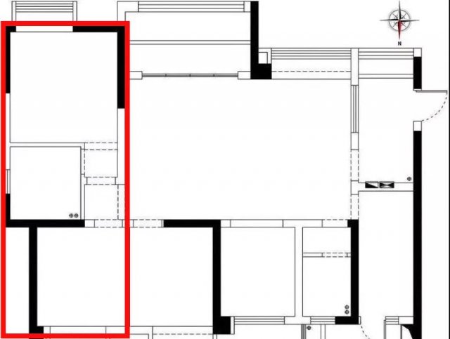
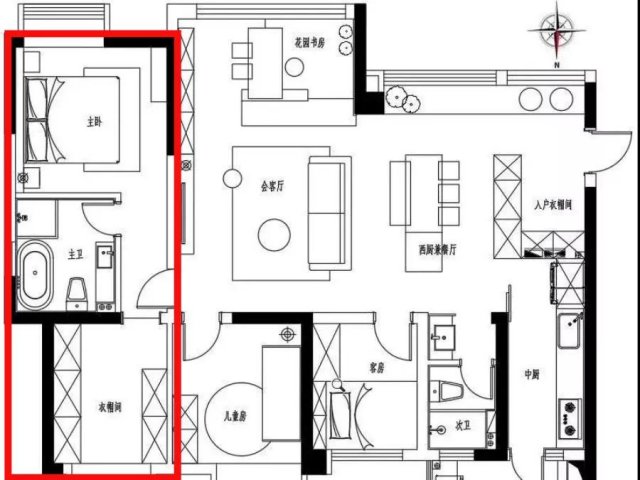
下面这套户型中,出现了卧室小、房间多的情况,而屋主实际的居住需求是不需要那么多卧室和储藏室的,因此将与主卧相邻的次卧打通,并入主卧作为衣帽间。

改造前

改造后

这样设计之后,主卧空间不再紧张,再安排一个衣帽间,让仪式感从每天清晨挑选衣服开始!

靠墙做开放式衣柜鞋柜,挑选衣服更加方便。如果觉得灰尘难打理,可以装一个玻璃移门,既不阻碍视线,也不影响空间美感。

卫生间门洞的大小也很重要,拓宽门洞再安装玻璃移门,空间的整体感更强,层高也更佳。

如果不能接受完全透明的卫生间,可以考虑用磨砂玻璃或长虹玻璃,能保护一些隐私,也能提高空间的美感。

卫生间不装门,打造更加开放、自由的空间。

建议一定要在装修之前就规划好空间,砸墙只能砸非承重墙。另外家居动线也要合理规划,否则每天行动都会很麻烦~

还可以增加一个休闲区,旁边立上一盏昏黄的落地灯,营造慵懒悠闲的氛围。

◆ 将阳台并入卧室

阳台太大,一个不好就会白白浪费空间,想想房价,是不是心都疼了?将大阳台一分为二,一部分作为休闲阳台,看书喝茶养养花;另一部分作为工作区,解决家里没有独立书房的难题。

改造前

改造后

主卧带阳台的情况还是很多的,一般都是直接将它并入卧室。不论是作为工作区还是休闲区的,都是非常合适的。

增加卧室的功能,打造浪漫又悠闲的空间,营造不一样的卧室氛围。

◆ 采用隔断,将卧室分离出多个功能区

如果墙不能砸,次卧和储藏室不能并入主卧,在不能扩大卧室空间的情况下,也是有办法将主卧改成套间的,只要卧室面积足够~

用实墙进行隔断

用实墙分隔出卫生间或者衣帽间,隐私性更强一点,而且空间显得更有层次感。

半墙分隔出床与衣帽间,不会破坏空间的整体性。

软包床头背景墙也申请加入“战场”,隔断空间的同时还为卧室点缀了一抹迷人的颜色。

木质半墙来隔断,另一端作为工作区或者休闲区,丰富卧室空间的功能。卧室在8平米以下的,慎用实墙隔断,会显得空间狭窄压抑!建议用半墙形式的隔断!

隔断要与卧室的风格一致,否则会突兀。如果需要上漆,一定要选不含甲醛的!

◆ 超小户型的卧室设计

如果你的房子很小,只有一室一厅,又想营造出美观大气的效果,那你一定要看这里!

加上玻璃移门,打造开放式的卧室空间。一室一厅也能简单又自由。在玻璃门内侧装上窗帘,休息的时候能够隔绝光线;有人来家里时,拉上窗帘也能保护隐私。

迷你户型也能通过设计变得丰富多样,当家不再是一个单纯的住所,而是一件令人心驰神往的艺术品时,我们的生活也就不会再平淡乏味。

中山帮忙装修网公司总结:卧室改造套间的小方法这么多,你最中意哪个?改造不能盲目,得根据使用需求来~最想增加什么功能就采取什么方式的改造,毕竟设计是服务于生活的!

装修预算不够?快来申请装修贷款!月息低至2.5厘。帮忙装修网为解决业主的装修资金难题,特与银行合作推出“装修贷”,一站轻松办理:18824725983 吴先生

 长按二维码关注"帮忙装修网",了解更多装修资讯↓↓↓
 

或拨打免费热线:13822775923

已成功招标53521